La nueva instalación, con 12 pistas de pádel cubiertas, será la referencia en la Zona Norte de Madrid
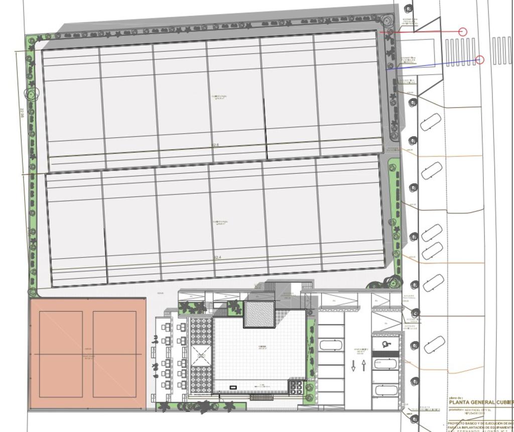
En las próximas semanas comenzarán las obras de construcción de un nuevo Club de Pádel en la localidad madrileña de Alcobendas. De esta manera la zona norte de Madrid dispondrá de un club premium sobre una parcela de 5 mil metros cuadrados situada en la Avda. Fernando Alonso, nº7.
El club dispondrá de 12 pistas de pádel cubiertas, 2 pistas de vóley playa al aire libre, una casa club de más 500 metros cuadrados con un importante servicio de restauración, excelentes vestuarios y un aparcamiento privado con servicio de recarga eléctrica. En definitiva, los mejores servicios para todas las personas que decidan utilizar estas modernas instalaciones.

Los promotores de esta nueva instalación deportiva serán Ricardo de las Heras Baraja y José Barranco Gómez, socios fundadores de School Padel Center, empresa con más de 15 años de experiencia en la gestión de instalaciones deportivas de pádel.
Ricardo de las Heras, CEO de School Padel Center no oculta la ilusión por este nuevo proyecto: «Se ha diseñando con mucho cariño para que haya espacios diferenciados que den servicio a las familias del entorno, así como a las empresas que quieren realizar sus eventos en este innovador centro».
Esta nueva instalación deportiva dedicada fundamentalmente al pádel pretende tener un ambiente familiar con escuela de iniciación para niños y mayores, academia de competición y campus de verano. Sin perder de vista la posibilidad de organizar eventos para empresas y clientes. En definitiva esta instalación deportiva será un hub de ocio y deporte para todo el importante entramado empresarial de Alcobendas y localidades más próximas.
El pádel ha experimentado un crecimiento extraordinario en número de practicantes recientemente. Este nuevo club de pádel responderá a las necesidades y expectativas de aquellos jugadores que buscan practicar su deporte favorito con todas las comodidades a su alcance.
Contacto Nombre contacto: Ricardo de las Heras Barajas Descripción contacto: Teléfono de contacto: +34626350220
Imágenes
Pie de foto: Plano del Nuevo Club en Alcobendas
Autor: SPC
Pie de foto: Instalaciones de SPC-M30
Autor: SPC
Pie de foto: Instalaciones de SPC-M30, parte de la misma empresa.
Autor: SPC

Pie de foto: Instalaciones de SPC-M30Autor: SPC
AGENCIA EFE S.A. no se hace responsable de la información que contiene este mensaje y no asume responsabilidad alguna frente aterceros sobre su íntegro contenido, quedando igualmente exonerada de la responsabilidad de la entidad autora del mismo.